Startseite
Aktuelles
Projekte
Under Construction
Umgesetzte Projekte
Gewerbe/Büros
Innenarchitektur
Betriebsrestaurants
Technikgebäude
Industrie
Handel
Sanierung
Gesundheitswesen
Schulbau
Sozialbau
Wohnungsbau
Musik und Schauspiel
Projektstudien
Gewerbe/Büros
Industrie
Handel
Gesundheitswesen
Schulbau
Wohnungsbau
Logistik
Städtebau
Profil
Philosophie
Büro/Personen
Auszeichnungen
Referenzen
Leistungsspektrum
Klassische Leistungen
Teilleistungen
Projektentwicklung
Gesamtplanung
Jobs
Kontakt
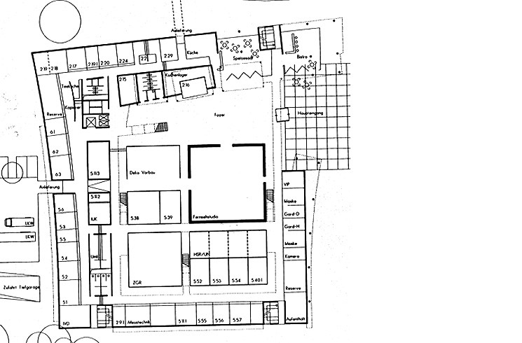
Startseite › Projekte › Projektstudien › Industrie
MDR, Erfurt
...
Visuals